Meerwaarde voor heel het dorp
37 woningen Menkemabuurt, Uithuizen

37 woningen Menkemabuurt, Uithuizen

Brandweerkazerne Hoogeveen

Kindcentrum Albertine Agnes Oranjewoud

Museum Møhlmann

Depot voor de collecties van Utrecht

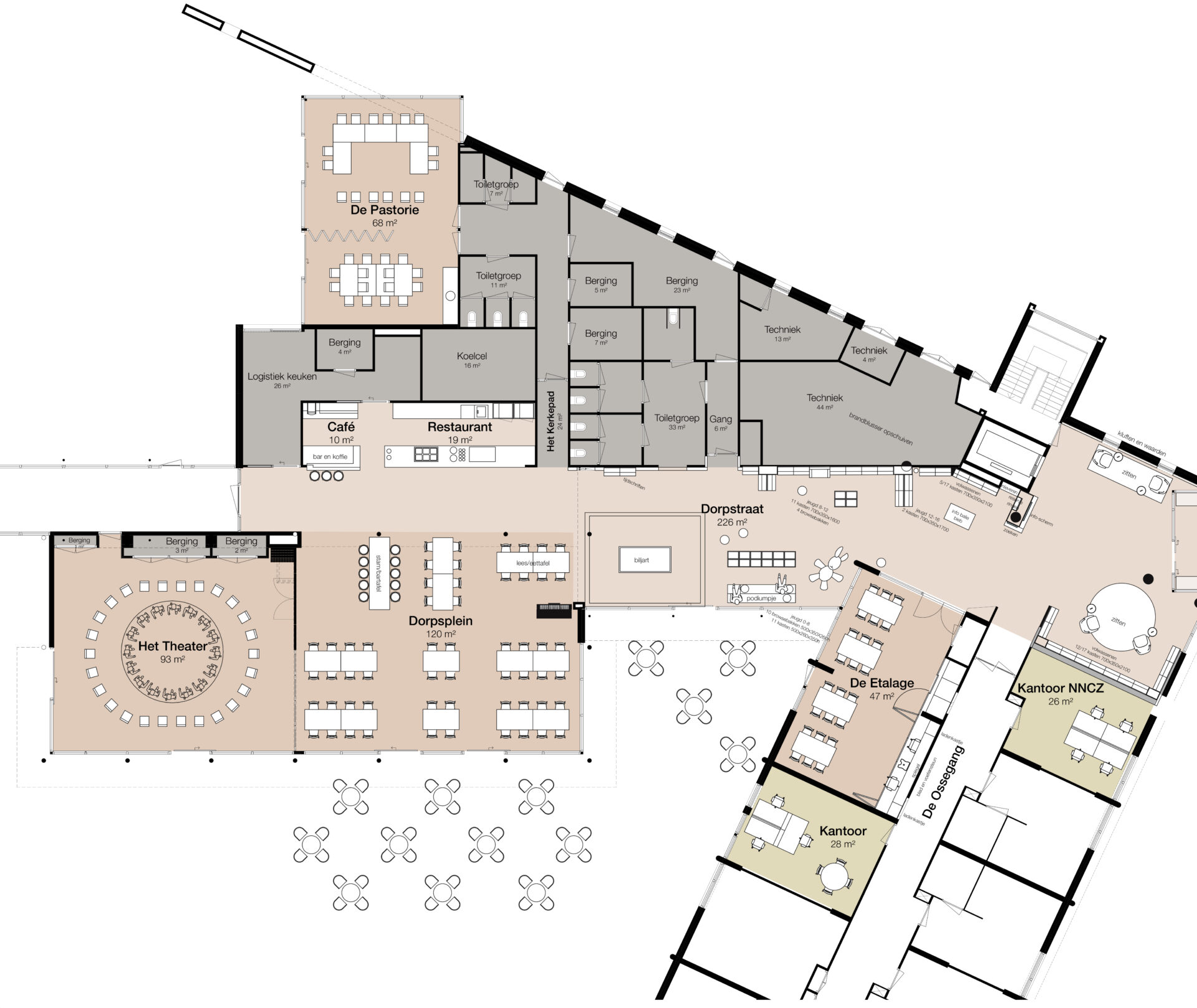
Upgrade VanDoorenVeste

Broodatelier Avenhorn

SO School It Twaluk-KDC De Vlieger Leeuwarden

Lauwerscollege Grijpskerk

Binnenmeer De Zeilen

Teambureau Politie Hogeland

Meerhoven

De Nieuwe Linie

Masterplan Zeefgebouw en omgeving

Verbouw Rutger Kopland School

Campus Eemsdelta

Molukkenstraat

Energiehub050

Kindcentrum Warffum

Entreehal Oosterpoort

Entree Provinciehuis

Verduurzaming RSG De Borgen

Transformatie buurthuis Oosterpark

Herhuisvesting Veiligheidsregio Groningen

Herhuisvesting Iederz

Avebe

Stedenbouwkundig plan Campus Kardinge

Sociale huur De Vestingbuurt Delfzijl

Woningen Sluispoort

Nieuw elan met vertrouwde sfeer

Verbouw Dr. Aletta Jacobs College

STRUCTUURPLAN EN TOETSINGSKADER WERELDERFGOEDCENTRUM WADDENZEE

De Floris

Sportzaal De Wiardt

De Toeverlaat

Kindcentrum Siddeburen

Uitbreiding Unigarant

Tuinfoyer SPOT Oosterpoort

Buurtschap De Gast

Hoofdkantoor Rijnbrink

Innovatiehub HIT

MFC De Wierde

Energy Academy Europe

Multidisciplinair ruimtelijk onderzoek

Woningen De Vlint

Meerhoven, Meerstad

onderwijsgebouw SCMI

Unigarant, Hoogeveen

EnTranCe

Respectvol bouwen op archeologische grond

Woningen Stadswerf

Het Kopland

BuildinG Innovatiecentrum

Trap Zeefgebouw Suikerterrein

Woonbuurt De Nieuwe Linie

Rabobank Assen en Noord-Drenthe

Castellum Hoge Woerd

Rabobank Groningen

Preadinussingel, Academie Minerva

Integraal kindcentrum Noordrijk

Het Perron Haren

Appartementen Wiesmoor

Meergeneratiewoningen Avenhorn
