Een School op maat
In samenwerking met de School of Communication, Media & IT van de Hanzehogeschool hebben we een ontwerpend onderzoek gedaan naar slimme huisvesting op maat voor de School. Dit heeft geresulteerd in het ontwerp van een superflexibel, uitbreidbaar en verplaatsbaar schoolgebouw dat zorgvuldig is ingepast in de omgeving. Voor toekomstige exploitatie en gebruik zijn diverse realistische scenario’s integraal met het ontwerp mee-ontwikkeld.
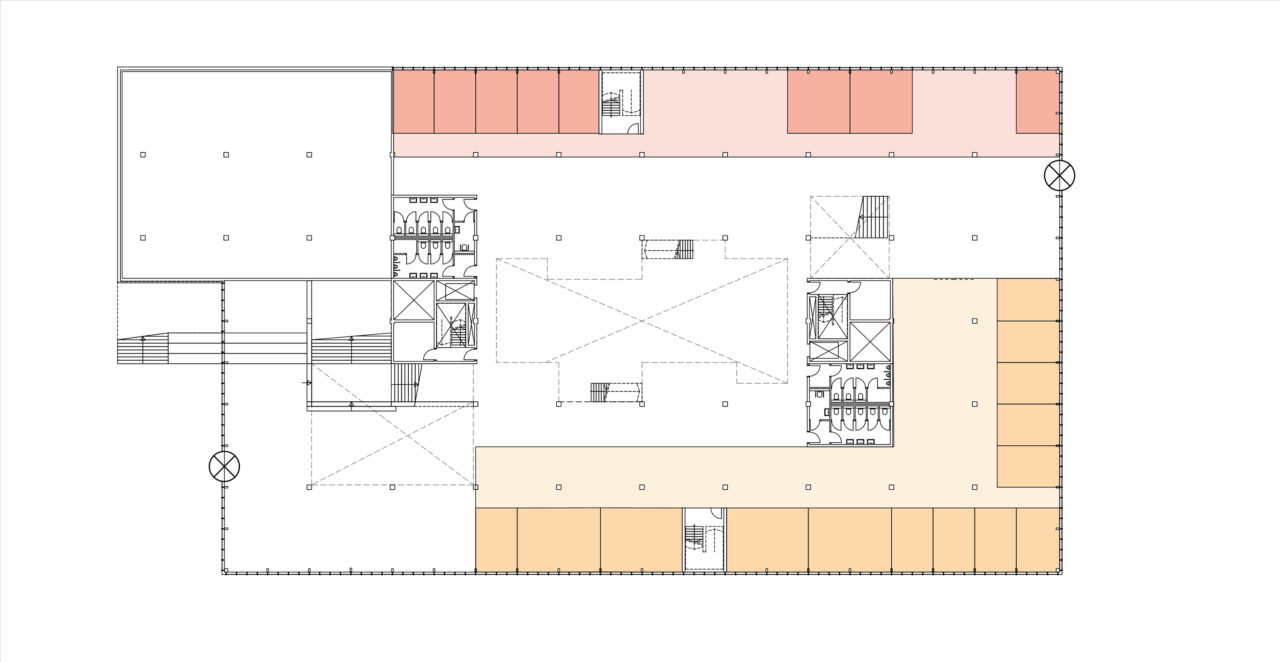
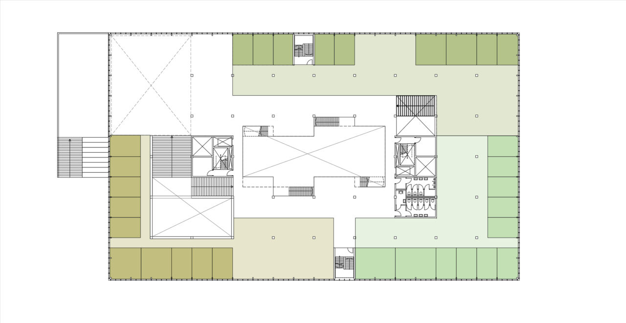
Optimale indelingsvrijheid en toekomstige exploitatie
Het casco met efficiënt gepositioneerde trapkernen biedt optimale indelingsvrijheid en aanpasbaarheid en een efficiënte routing en installatieconcept. De inpandige techniekruimte is goed bereikbaar weggewerkt en wordt gecombineerd met een buitenruimte op de verdieping met fraai uitzicht. Het centrale atrium brengt licht en lucht tot diep in het gebouw en biedt plek voor ontmoeting en kennisuitwisseling. Alle ruimtes in het gebouw staan via het atrium met elkaar in verbinding.

Compact volume in aantrekkelijk groen
De kaders van het masterplan Zernike Campus en het bestemmingsplan zijn gecombineerd in een compact volume dat zorgt voor een optimale routing door het gebouw. Ook maakt het compacte volume ruimte voor een aantrekkelijke groen plein en slimme aantakking op bestaande en nieuwe routes. Interne en externe routing zijn daardoor beide aantrekkelijk aangehaakt op elkaar en de omgeving.

Multi-use scenario’s onderdeel van het ontwerp
Tegelijk met de ontwikkeling van het ontwerp zijn toekomstige multi-use scenario’s onderzocht en uitgewerkt. Doordat deze scenario’s samen met het ontwerp zijn ontwikkeld,
Door deze gelijktijdige ontwikkeling als onderdeel van het ontwerp zijn de scenario’s direct integraal getoetst op haalbaarheid, bandbreedte en ruimtelijke voorwaarden en mogelijkheden.

Gevel: ode aan Nederlandse ingenieurskunst
De gevel is gebaseerd op de combinatie van alle functionele en ruimtelijke eisen en wensen: energieprestatie nul-op-de-meter; licht- en warmtewering in de zomer; lichtinval in de winter; alzijdigheid; transparantie en relaties interieur en omgeving; robuust, kostenbewust en onderhoudsvrij; biobased en circulair. Al deze eisen zijn gecombineerd in een gevel met een lijnenspel dat geïnspireerd is op het functionele polderlandschap waarin de Zernike Campus is gerealiseerd. De gevel is daarmee een ode aan de grote kernkwaliteit van Hollandse ingenieurskunst: het op basis van techniek en functionele eisen maken van een esthetisch aantrekkelijk beeld.

Project
School of Communication, Media & IT
Locatie
Groningen
Programma
Onderwijs, kantoren
Opdrachtgever
Hanzehogeschool Groningen
Periode
2018-2019
Omvang
8655 m2
Status
In ontwerp
Team





